Objekt drucken Seite ausdrucken




Ihr Ansprechpartner: Herr Johannes Telefon: 0351 / 31 44 17 0 oder 0174 / 304 5000
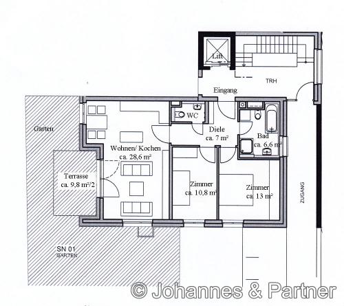
 Mietwohnung: 01129 Dresden - Trachau , Dorothea-Erxleben-Str. 17 WE 1
Objekt-ID: 5275

Beschreibung:

Zu vermieten ist eine schöne Terrassen-Wohnung in einem Neubau nach neuesten bautechnischen Anforderungen und mit moderner, zeitgemäßer Ausstattung wie

* Terrasse mit Süd-Ausrichtung und Gartensondernutzungsrecht im Erdgeschoss
* Echtholzparkett in allen Wohn- und Schlafräumen
* alle Fenster mit elektrischen Rollläden und 3-fach-Verglasung
* Bad mit Badewanne, Regenwalddusche, Fenster, Handtuchheizkörper, Geruchsabsaugung an der Toilette sowie Waschmaschinen-Anschluss
* Multimedia-Anschlüsse in allen Schlafräumen und im Wohnzimmer
* Gemeinschaftsgarten mit Sitzbank
* großer Tiefgaragenstellplatz mit Stromanschlussdose (absperrbar) für E-Autos
* moderne Gegensprechanlage mit großem Bildschirm und Aufzeichnungsmöglichkeit
* entlang der Straßenseite gesäumt mit einer Zaunanlage
* modernes Heizungs- und Warmwassersystem mit umweltschonender Luftwärmepumpe

Energieausweis liegt zur Besichtigung vor.


































Exposé ist nur zur Information für Interessenten. Eine Weiterverwendung durch Dritte bedarf der vorherigen Genehmigung. In diesem Angebot enthaltene Angaben, Abmessungen und Preise beruhen auf Informationen der Auftraggeber (Eigentümer). Abweichungen sind möglich. Eine Haftung unsererseits ist ausgeschlossen. Zwischenzeitliche Vermietung/Verkauf vorbehalten.


Bürogemeinschaft Johannes & Partner - Loschwitzer Straße 21 - 01309 Dresden - Tel.: 0351 31 44 17 0