Objekt drucken Seite ausdrucken




Ihr Ansprechpartner: Herr Johannes Telefon: 0351 / 31 44 17 0 oder 0174 / 304 5000
Neu! Haus Weißer Hirsch mit 3 Zimmern

 Haus zur Miete: 01324 Dresden - Weißer Hirsch , Lahmann WE 14
Objekt-ID: 6462

Beschreibung:

Im historischen und bekannten Lahmann-Sanatorium am Weißen Hirsch sind 14 beeindruckende und individuelle Wohneinheiten mit folgender exklusiver Ausstattung entstanden:

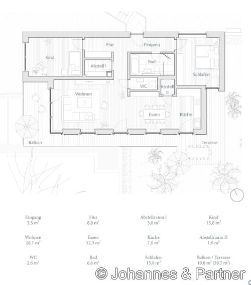
* frei stehendes Einfamilienhaus mit offenem und modernen Grundriss
* große Fensterflächen
* Sichtbetondecke
* exklusiver Kamin
* Eichenparkett
* großer Terrasse und eigenem Garten
* Balkon
* Fußbodenheizung
* modern und hell gefliestes Bad mit ebenerdige Dusche und Badewanne
* Gäste-WC
* Abstellraum
* dreifach verglaste Fenster
* Lüftungs- und Wärmerückgewinnungsanlage
* Gegensprechanlage mit Video
* Fern-/Kraft-Wärmekopplung
* aufwendig bemalte und teilweise vergoldete Holzkassettendecken im gemeinschaftlichen Treppenhaus
* Duplex-Tiefgaragenstellplätze ab 100 € je nach Größe möglich
* Ladestation in der Tiefgarage am Stellplatz möglich

Energieausweis: Das Objekt unterliegt nicht den GEG-Anforderungen



Grundriss


Hausansicht


Wohnzimmer mit Kamin


Wohnen - Blick von der Küche


großes, helles Wohnzimmer


großes, helles Wohnzimmer mit Balkon


Küche


Wohnen


Hausansicht


Zimmer


Zimmer











Exposé ist nur zur Information für Interessenten. Eine Weiterverwendung durch Dritte bedarf der vorherigen Genehmigung. In diesem Angebot enthaltene Angaben, Abmessungen und Preise beruhen auf Informationen der Auftraggeber (Eigentümer). Abweichungen sind möglich. Eine Haftung unsererseits ist ausgeschlossen. Zwischenzeitliche Vermietung/Verkauf vorbehalten.


Bürogemeinschaft Johannes & Partner - Loschwitzer Straße 21 - 01309 Dresden - Tel.: 0351 31 44 17 0