![]() Ihr Ansprechpartner: Herr Johannes Telefon: 0351 / 31 44 17 0 oder 0174 / 304 5000 |
|||||||||||||||||||||
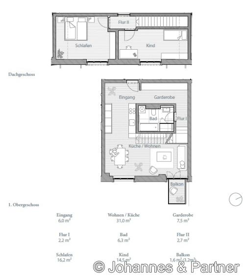
Wohnfläche:
88,00 m²
Baujahr:
1898 Denkmal
Zimmer:
3-Zimmer-Wohnung
Etage:
Maisonette-Whg.
Balkon/Terrasse:
Balkon
Objektart:
sanierte Villa
Einbauküche:
-
Frei ab:
sofort
Aufzug/Lift:
-
PKW-Stellplatz:
Tiefgarage ab 100 €
Kaltmiete
1.490,00 €
Kaution:
2 Kaltmieten
NK-vorausz.:
360,00 €
Warmmiete:
1.850,00 €
Beschreibung:
In dem historischen Saal des bekannten Lahmann-Sanatoriums am Weißen Hirsch sind 14 beeindruckende und individuelle Wohneinheiten mit folgender exklusiver Ausstattung entstanden:
|
|||||||||||||||||||||
Bürogemeinschaft Johannes & Partner - Loschwitzer Straße 21 - 01309 Dresden - Tel.: 0351 31 44 17 0 |
|||||||||||||||||||||