Karte
Karte Dresden

Direktsuche
Objekt-ID:

Merkzettel    Merkzettel drucken
 
Adresse: 01219 Dresden - Leubnitz , Neuostra 8 WE 3
ID: 3011

Beschreibung:

In ruhiger und beliebter Lage von Leubnitz-Neuostra befindet sich diese schöne 3-Zimmer-Wohnung mit folgender Ausstattung:
* Balkon
* Parkett
* Fußbodenheizung
* Einbauküche 
* Einbauten in Flur, Bad und Arbeitszimmer
* Lampen vorhanden
* Vorhänge und Gardinen vorhanden
* elektrische Außenrollladen in allen Zimmern
* Außenmarkise elektrisch
* Dolby-Surround-Verkabelung
* moderne Bäder mit Badewanne, Dusche und Fenster
* Gäste-WC
* Malervlies an Decken und Wänden
Weitere Details auf Anfrage.

Angaben aus dem Energieausweis:

Baujahr: 2014                          Objektzustand: gepflegt
Heizungsart: Zentralheizung      Befeuerungsart: Nah-/Fernwärme; Strommix
Energiebedarf:  67 kWh (m²*a) Typ: Verbrauchsausweis
Energieeffizienzklasse: B


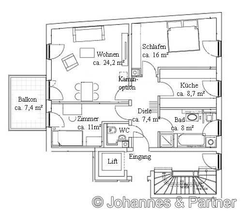
Grundriss
Grundriss
 

Balkon und Ausblick ähnlich
Balkon und Ausblick ähnlich

 

Küche mit Einbauküche
Küche mit Einbauküche

Küche mit Einbauküche
Küche mit Einbauküche
 

Zimmer ähnlich
Zimmer ähnlich

Bad mit Badewanne und Dusche
Bad mit Badewanne und Dusche
 

Bad mit Wanne und Dusche
Bad mit Wanne und Dusche

Gäste-WC
Gäste-WC
 

Zimmer
Zimmer

 


Flur mit Möbeln
Flur mit Möbeln
 

Balkon
Balkon

 


 


Exposé ist nur zur Information für Interessenten. Eine Weiterverwendung durch Dritte bedarf der vorherigen Genehmigung. In diesem Angebot enthaltene Angaben, Abmessungen und Preise beruhen auf Informationen der Auftraggeber (Eigentümer). Abweichungen sind möglich. Eine Haftung unsererseits ist ausgeschlossen. Zwischenzeitliche Vermietung/Verkauf vorbehalten.
Kontakt / Anfrage
Bei Fragen rufen Sie uns bitte an oder senden Sie uns eine Email. Wir werden uns schnellstmöglich bei Ihnen melden. Bitte hinterlassen Sie Ihre Telefonnummer!

Sie erreichen uns unter:
Tel.: +49 351 - 31 44 17 0 oder +49 174 - 304 5000.
Fax: +49 351 - 31 44 17 22
Email: info@dresdden.de

Ihr Name:
Ihre Email:
Ihre Tel.Nr.:
Nachricht:
 
Mit dem „Abschicken" dieses Kontaktformular stimme ich zu, dass meine Angaben aus dem Kontaktformular zur Beantwortung meiner Anfrage gemäß den Datenschutzbestimmungen von Johannes & Partner zu den dort beschriebenen Zwecken erhoben und verarbeitet werden. Ich habe die Datenschutzerklärung von Johannes & Partner zur Kenntnis genommen.
 
 
© Johannes & Partner Immobilienmakler 18 :45 Uhr | 27.01.2026