Karte
Karte Dresden

Direktsuche
Objekt-ID:

Merkzettel    Merkzettel drucken
 
Neu! Haus Weißer Hirsch mit 3 Zimmern
Adresse: 01324 Dresden - Weißer Hirsch , Lahmann WE 14
ID: 6462

Beschreibung:

Im historischen und bekannten Lahmann-Sanatorium am Weißen Hirsch sind 14 beeindruckende und individuelle Wohneinheiten mit folgender exklusiver Ausstattung entstanden:

* frei stehendes Einfamilienhaus mit offenem und modernen Grundriss
* große Fensterflächen
* Sichtbetondecke
* exklusiver Kamin
* Eichenparkett
* großer Terrasse und eigenem Garten
* Balkon
* Fußbodenheizung
* modern und hell gefliestes Bad mit ebenerdige Dusche und Badewanne
* Gäste-WC
* Abstellraum
* dreifach verglaste Fenster
* Lüftungs- und Wärmerückgewinnungsanlage
* Gegensprechanlage mit Video
* Fern-/Kraft-Wärmekopplung
* aufwendig bemalte und teilweise vergoldete Holzkassettendecken im gemeinschaftlichen Treppenhaus
* Duplex-Tiefgaragenstellplätze ab 100 € je nach Größe möglich
* Ladestation in der Tiefgarage am Stellplatz möglich

Energieausweis: Das Objekt unterliegt nicht den GEG-Anforderungen

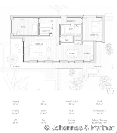
Grundriss
Grundriss
 

Hausansicht
Hausansicht

Wohnzimmer mit Kamin
Wohnzimmer mit Kamin
 

Wohnen - Blick von der Küche
Wohnen - Blick von der Küche

großes, helles Wohnzimmer
großes, helles Wohnzimmer
 

großes, helles Wohnzimmer mit Balkon
großes, helles Wohnzimmer mit Balkon

Küche
Küche
 

Wohnen
Wohnen

Hausansicht
Hausansicht
 

Zimmer
Zimmer

Zimmer
Zimmer
 


 



Exposé ist nur zur Information für Interessenten. Eine Weiterverwendung durch Dritte bedarf der vorherigen Genehmigung. In diesem Angebot enthaltene Angaben, Abmessungen und Preise beruhen auf Informationen der Auftraggeber (Eigentümer). Abweichungen sind möglich. Eine Haftung unsererseits ist ausgeschlossen. Zwischenzeitliche Vermietung/Verkauf vorbehalten.
Kontakt / Anfrage
Bei Fragen rufen Sie uns bitte an oder senden Sie uns eine Email. Wir werden uns schnellstmöglich bei Ihnen melden. Bitte hinterlassen Sie Ihre Telefonnummer!

Sie erreichen uns unter:
Tel.: +49 351 - 31 44 17 0 oder +49 174 - 304 5000.
Fax: +49 351 - 31 44 17 22
Email: info@dresdden.de

Ihr Name:
Ihre Email:
Ihre Tel.Nr.:
Nachricht:
 
Mit dem „Abschicken" dieses Kontaktformular stimme ich zu, dass meine Angaben aus dem Kontaktformular zur Beantwortung meiner Anfrage gemäß den Datenschutzbestimmungen von Johannes & Partner zu den dort beschriebenen Zwecken erhoben und verarbeitet werden. Ich habe die Datenschutzerklärung von Johannes & Partner zur Kenntnis genommen.
 
 
© Johannes & Partner Immobilienmakler 16 :56 Uhr | 27.01.2026